Row House Lot One Front View CAD Drawing for Architect
Description
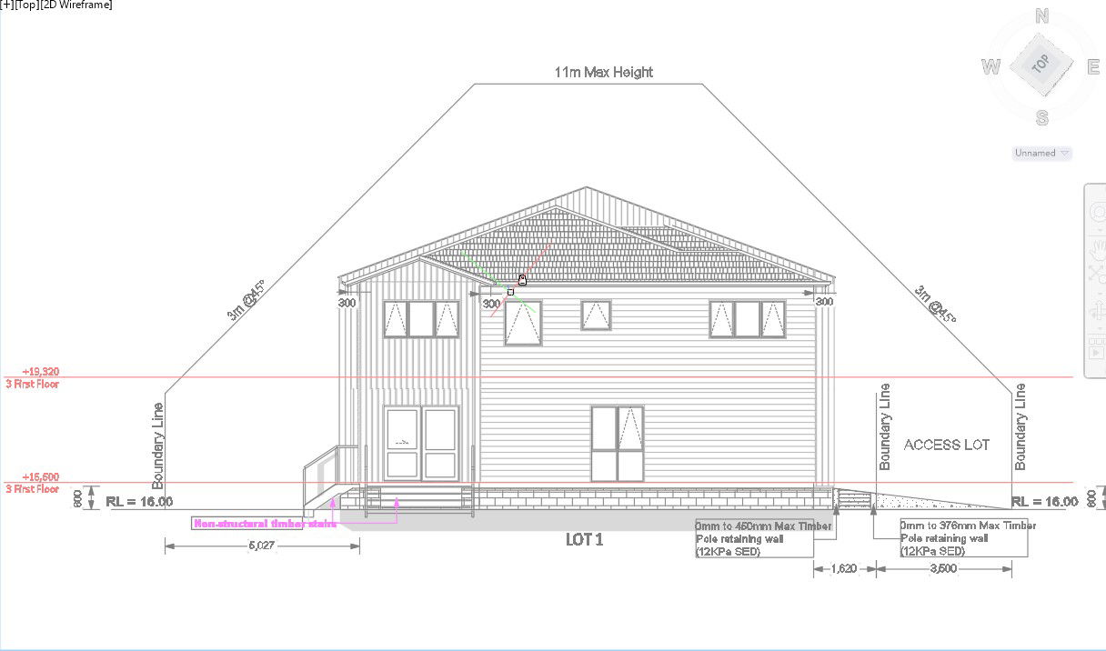
The front elevation of lot 1 of the row house design is given in the AutoCAD 2D drawing. The maximum height of the house is 11m specified. stair details are also given. For more knowledge and detailed information download the AutoCAD 2D dwg file.
Uploaded by:
viddhi
chajjed

