Ground floor layout plan of the commercial building is given in AutoCAD 2D drawing, CAD file, dwg file
Description
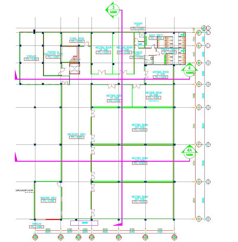
The ground floor layout plan of the commercial building is given in AutoCAD 2D drawing. There was a meeting room, breakout area, smoking area, storage, pantry, chinaware store, washrooms, and other details available on this floor. For more knowledge and detailed information download the AutoCAD 2D drawing file.
Uploaded by:
viddhi
chajjed

