Lots 1 to 6 Ground Floor Row House AutoCAD DWG Plan
Description
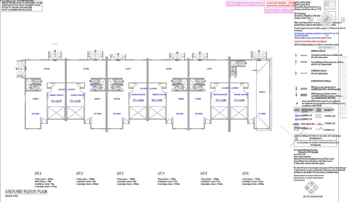
Lot 1-6 ground floor plan of the row house design is given in AutoCAD 2D drawing. The garage, living room, dining area, kitchen, and laundry are available on this floor. For more knowledge and detailed information download the AutoCAD 2D dwg file.
Uploaded by:
viddhi
chajjed

