A section view of the Sewage Treatment Plant is given in AutoCAD 2d drawing, CAD file, dwg file
Description
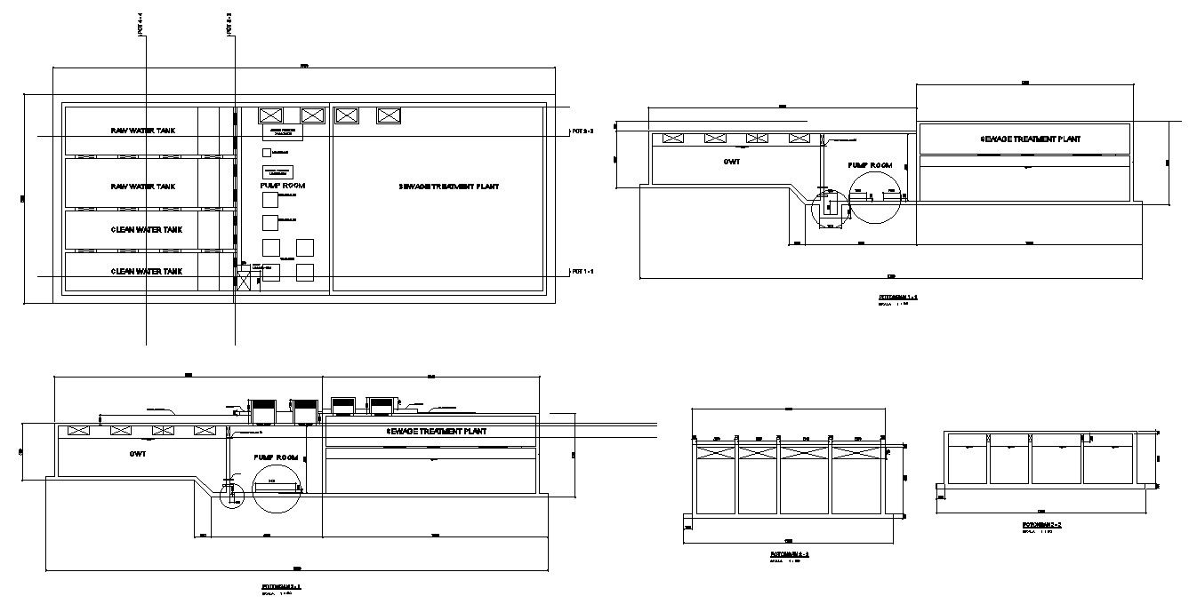
A section view of the Sewage Treatment Plant drawing is given in AutoCAD 2d drawing. Detailed view of different areas in the Raw water tank, Clean water tank, Pump room and etc. in this layout plant. For more details download the AutoCAD drawing file from our cadbull website.
Uploaded by:
K.H.J
Jani

