2D AutoCAD DWG Restaurant Layout with Detailed Section
Description
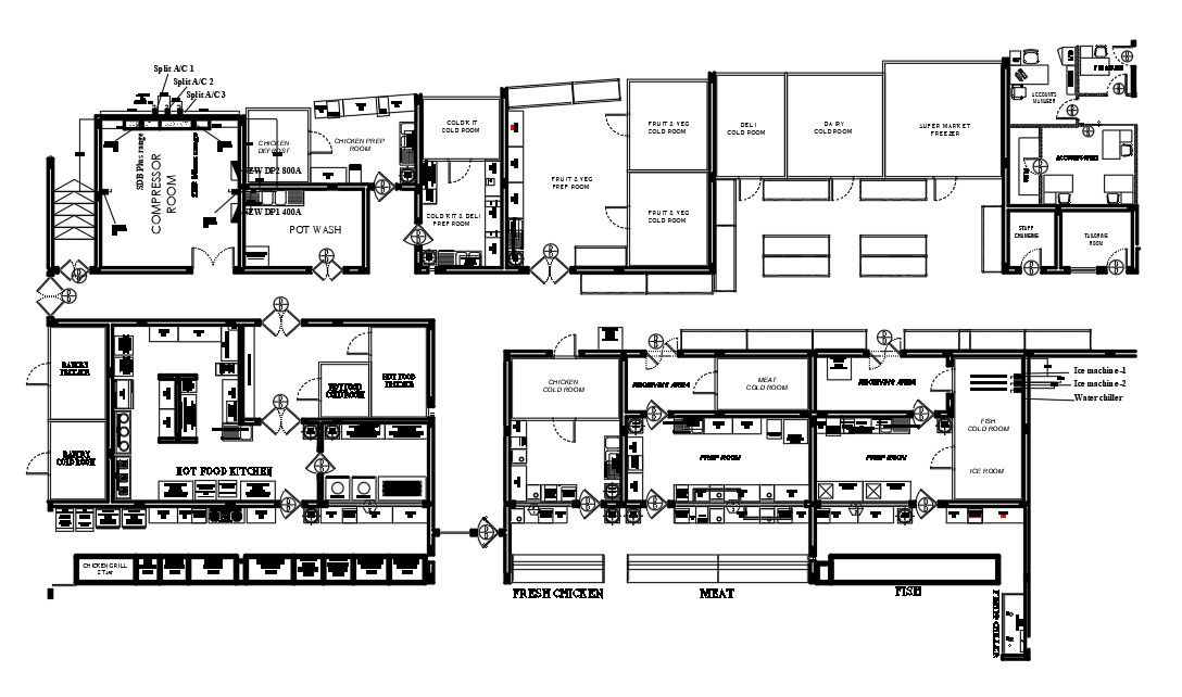
Restaurant 2d Plan is Given in AutoCAD Drawing File, dwg File, and Cad File. That includes In Fresh Chicken, Meat, Fish, Chicken Cold Room, Meet Cold Room, Fish Cold Room, Fruit & Veg Cold Room, Bakery Freezer, Bakery Cold Room, Hot Food Kitchen, Hot Cold Room, Hot Food Freezer, Compressor Room, Pot Wash, Cold Kit & Deli Prem Room, Staff Tailoring Room, Account Office, Account Manager Are There Available. For more knowledge and detailed information download the AutoCAD 2D dwg file.

Uploaded by:
Eiz
Luna

