Kitchen Plan Layout with Dimensions and AutoCAD DWG Drawing
Description
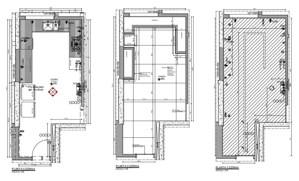
Kitchen plan with dimension detail dwg file, Kitchen detail information with plan and design plan layout of interior of kitchen, storage area, interior elevation of kitchen furniture,kitchen ceiling top view,kitchen area detail in dimension. Thank you for downloading the Autocad file and other CAD program files from our website.

Uploaded by:
Eiz
Luna

