RCC Ventilation Column Design Layout in AutoCAD DWG File

RCC Ventilation Column Design Layout in AutoCAD DWG File
Profile

Uploaded by:

K.H.J

Jani

Description

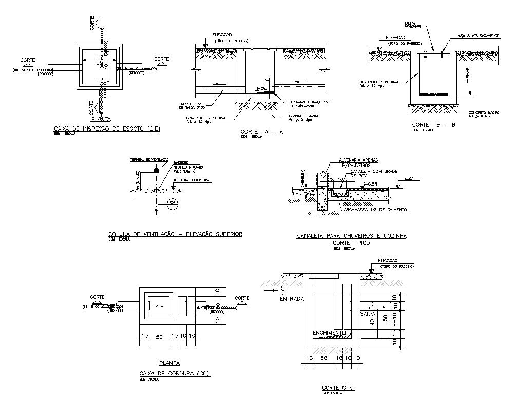
Reinforced concrete (RCC) Structure for ventilation column layout given in this AutoCAD 2D file. Design requirements for the ventilation column, such as the desired height, diameter, and load-bearing capacity. For more Knowledge and details information download the AutoCAD drawing file.    

Profile

Uploaded by:

K.H.J

Jani

find Latest

Related Files

WhatsApp Chat