Sanitary Pipeline Design for Water Supply in AutoCAD 2D Plan
Description
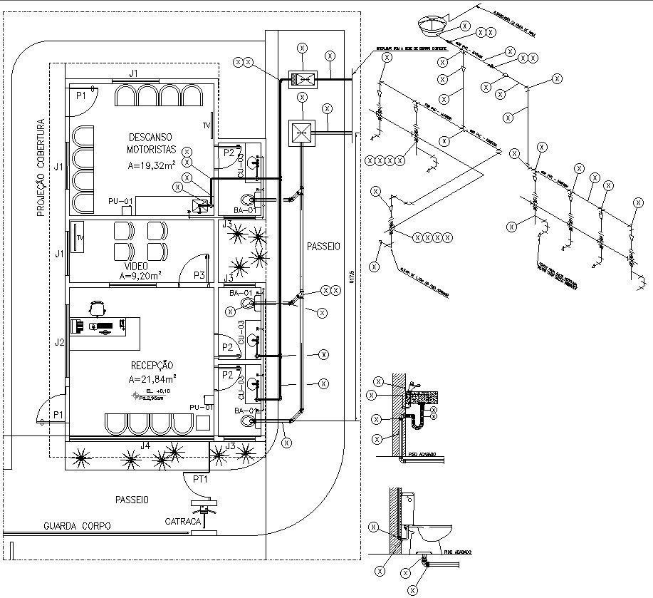
Sanitary detail of the water pipeline layout plan given in this AutoCAD 2D file. Plumbing fixtures and sanitary elements include in the design. Use straight lines to represent walls, and include openings where the fixtures will be placed. For more Knowledge and details information download the AutoCAD drawing file.
Uploaded by:
K.H.J
Jani

