Ground Floor Drainage Pipeline Layout in AutoCAD Plan
Description
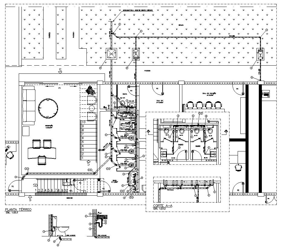
Drainage water pipeline details for a ground floor plan layout are given in the AutoCad 2D file. These may include sinks, toilets, showers, bathtubs, faucets, drainage systems, and other plan layout details. For more Knowledge and details information download the AutoCAD drawing file.
Uploaded by:
K.H.J
Jani

