Educational building floor plan DWG with beam layout detail
Description
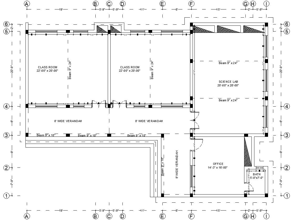
A typical floor plan for an educational building in beam details layout is given in AutoCad 2D file. It mentions classrooms, an office, Bath, a wide verandah, and a Science lab with beam dimensions are 9"x18". For more details and information download the AutoCAD drawing file.
Uploaded by:
K.H.J
Jani

