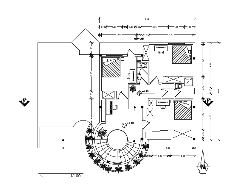
The first floor of this 16x11m duplex features three spacious bedrooms
Description
The first floor of this 16x11m duplex features three spacious bedrooms thoughtfully arranged for comfort and privacy. On this first floor, 3 bedrooms are available. Two well appointed common bathrooms conveniently serve the bedrooms, ensuring convenience for the family members. The layout maximizes space and offers a balanced blend of functionality and relaxation.
Uploaded by:

