Residential 20x12m Single Story Floor Plan in DWG File
Description
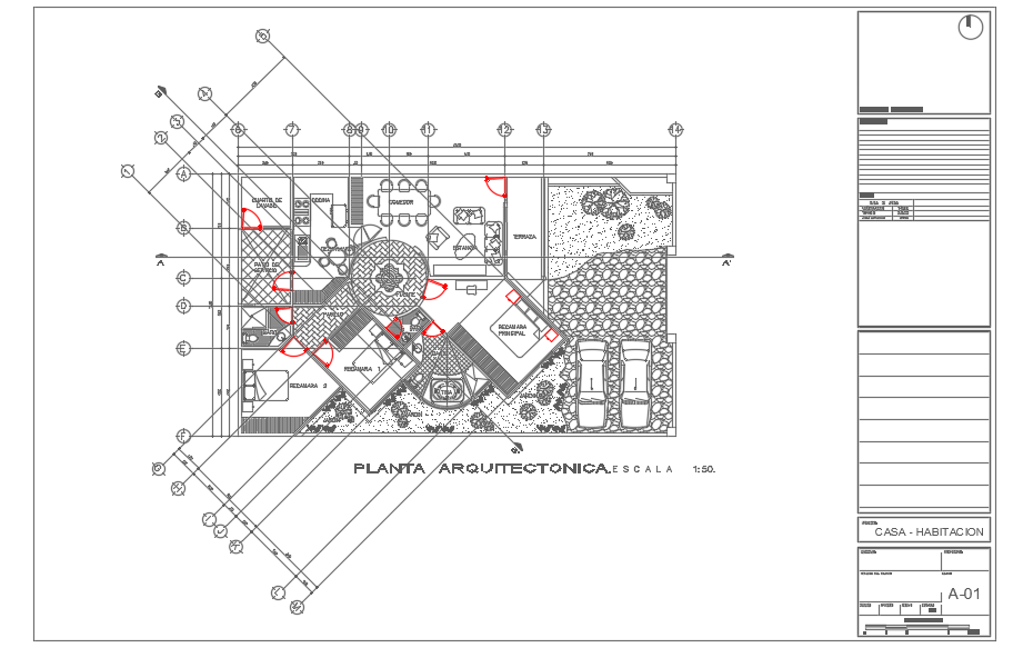
20x12m architecture single story house plan cad drawing is given in this file. The total height of the house building up to roof level is 4.1m. On this floor plan, a car parking, living room, kitchen, dining room, garden, patio service, passage, master bedroom with the attached toilet, kid’s bedroom, guest bedroom, and common bathroom is available. For more details download the AutoCAD drawing file from our cadbull website. Thank you for downloading the AutoCAD files from our website.
Uploaded by:

