Detailed Ground Floor Plan of 12x17m Home in CAD File
Description
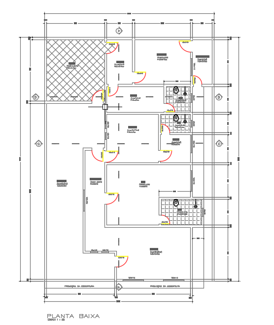
12x17m architecture single story house plan cad drawing is given in this file. This is a 2bhk house plan. On this floor plan, verandah, living room, corridor, master bedroom with the attached bathroom, kid’s room with the attached bathroom, guest room with the attached bathroom, kitchen, dining room, storeroom, and lavanderia is available. For more details download the AutoCAD drawing file from our cadbull website. Thank you for downloading the AutoCAD files from our website.
Uploaded by:

