Isometric Pipe Design for Machine Chest Pump Washing Line CAD Drawing In AutoCAD DWG File
Description
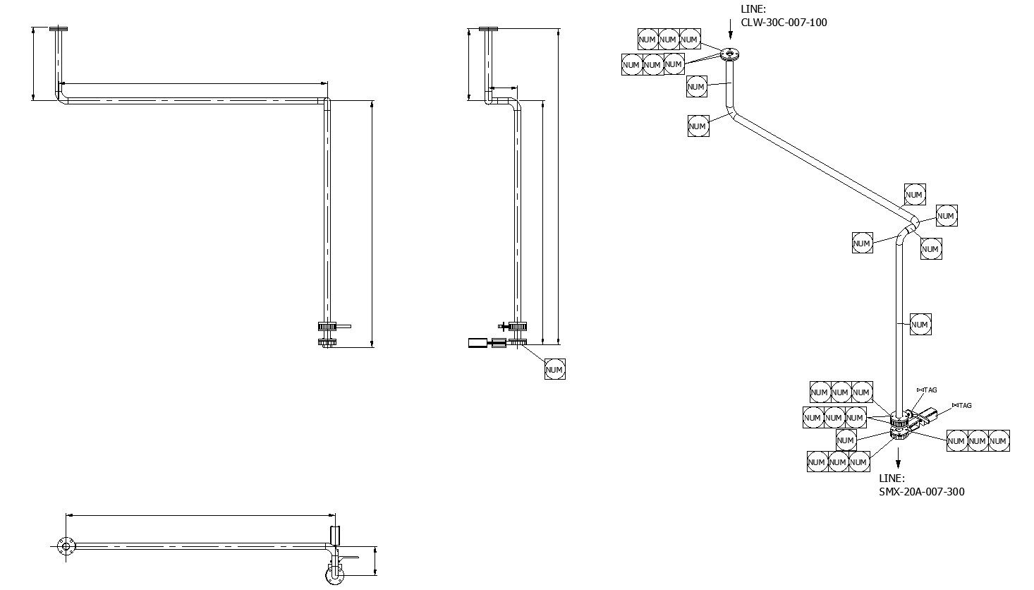
Explore the intricacies of our Isometric Pipe Design for a Machine Chest Pump Washing Line with our user-friendly CAD drawing in AutoCAD DWG file format. This detailed illustration provides a clear and concise representation of the system's layout. Accessible and precise, our CAD files ensure seamless integration into your projects, making the design process smoother. Dive into the world of CAD drawings and elevate your engineering endeavors with our comprehensive DWG files.
File Type:
DWG
File Size:
—
Category::
Dwg Cad Blocks
Sub Category::
Autocad Plumbing Fixture Blocks
type:
Gold
Uploaded by:
K.H.J
Jani

