DWG File with Detailed Outline for Plumbing Floor Plan
Description
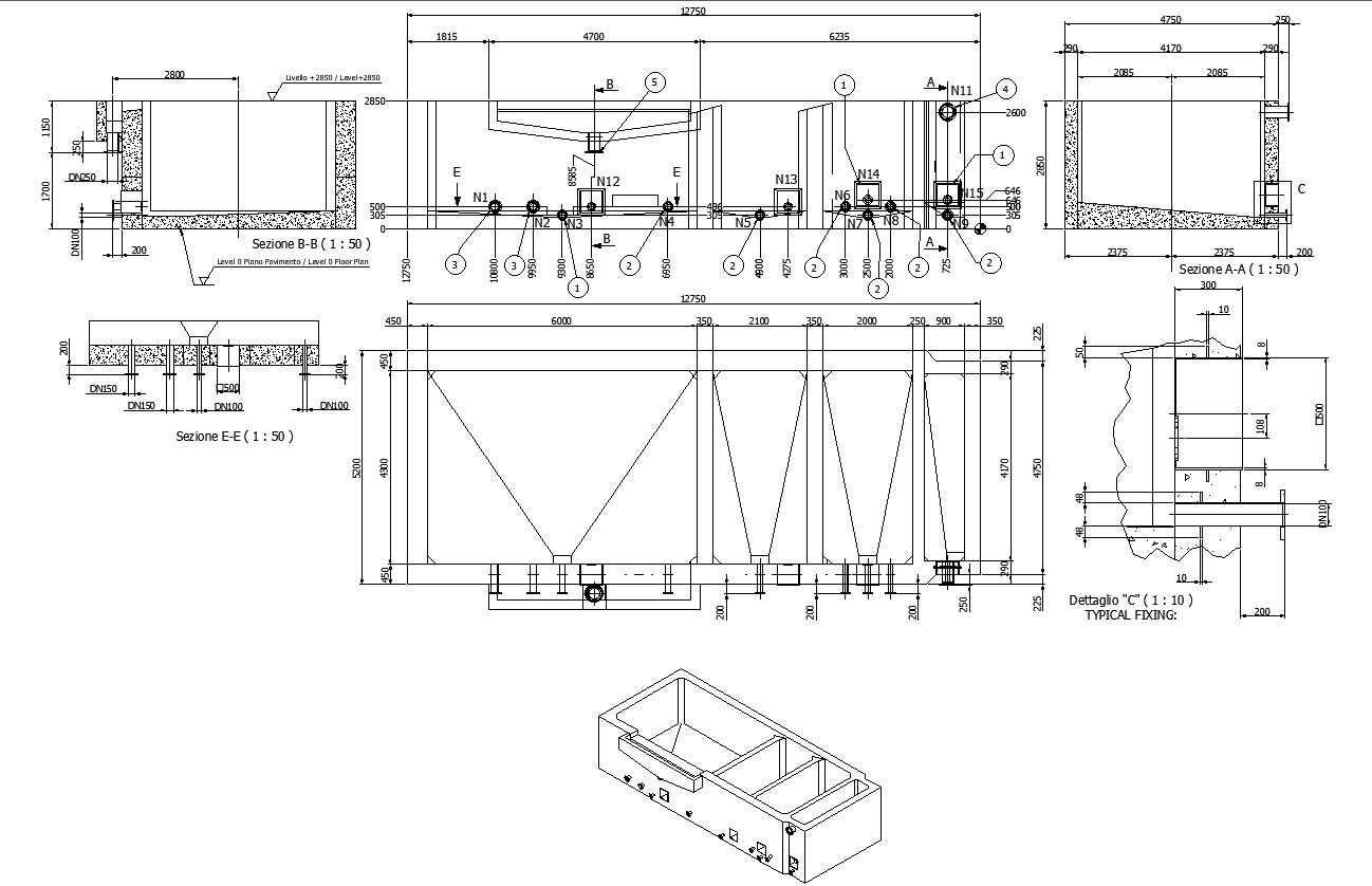
Explore the convenience of our AutoCAD files with this meticulously crafted DWG file, offering a comprehensive outline for your plumbing floor plan. Dive into the world of CAD drawings with ease as you access detailed sections that simplify your design process. This user-friendly resource is perfect for architects, designers, and anyone seeking efficient and precise CAD files. Elevate your project with the convenience of our DWG file, ensuring a seamless experience for your plumbing floor plan needs.
File Type:
DWG
File Size:
—
Category::
Dwg Cad Blocks
Sub Category::
Autocad Plumbing Fixture Blocks
type:
Gold
Uploaded by:
K.H.J
Jani

