Underwater Tank Footing Details CAD Drawing AutoCAD DWG File
Description
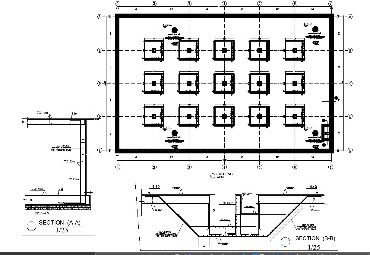
Explore the intricate details of underwater tank footing with this user-friendly CAD drawing in AutoCAD DWG format. Dive into the specifics effortlessly, as our CAD files provide a comprehensive view of the footing structure. Whether you're an engineer or an enthusiast, these CAD drawings offer valuable insights in a format that's easy to understand. Download our DWG files to unlock a wealth of information and enhance your understanding of tank footing design. Discover the convenience of AutoCAD drawings that make learning and planning a breeze.
Uploaded by:
K.H.J
Jani

