Detailed Plan and Section of Underwater Tank AutoCAD DWG File
Description
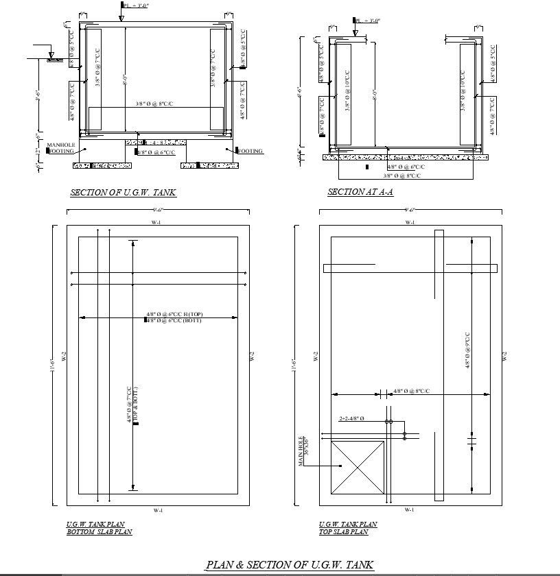
Explore the intricacies of underwater tank design with our Detailed Plan and Section AutoCAD DWG File. This comprehensive CAD drawing provides a clear and simple layout, making it easy to understand the tank's structure and features. Dive into the world of CAD drawings as you access this valuable resource, perfect for architects, engineers, and enthusiasts. Enhance your projects with precision and efficiency using our specialized DWG file – the key to seamless design in the world of AutoCAD
File Type:
DWG
File Size:
—
Category::
Dwg Cad Blocks
Sub Category::
Autocad Plumbing Fixture Blocks
type:
Gold
Uploaded by:
K.H.J
Jani

