CAD Drawing for Structural Details of Underground Water Tank
Description
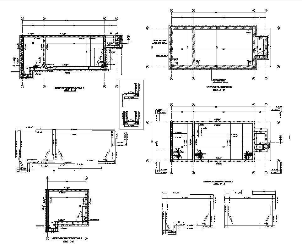
Explore the intricacies of underground water tank structures with our user-friendly CAD drawing. This AutoCAD file provides detailed structural information, allowing you to effortlessly visualize and plan your project. Download our CAD files now for comprehensive and precise drawings, making your design process a breeze. Dive into the world of CAD drawings and DWG files to enhance your project planning experience with ease.
Uploaded by:
K.H.J
Jani

