Details of septic tank structural elevation cad drawing dwg files
Description
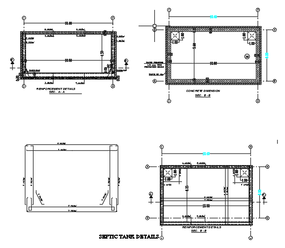
Explore our collection of user-friendly septic tank structural elevation CAD drawings in DWG files, designed to simplify your project planning. These AutoCAD files provide a comprehensive view of the septic tank's structural elements, allowing for easy integration into your design process. Navigate through detailed elevations with precision, ensuring seamless understanding of key components. Our CAD drawings, available in DWG format, offer the convenience and flexibility you need for efficient project management. Download these CAD files today to streamline your septic tank design process and enhance your overall project workflow.
File Type:
DWG
File Size:
—
Category::
Structure
Sub Category::
Section Plan CAD Blocks & DWG Drawing Models
type:
Gold

Uploaded by:
john
kelly

