Fire Tank Structural Details CAD Drawing in AutoCAD DWG File
Description
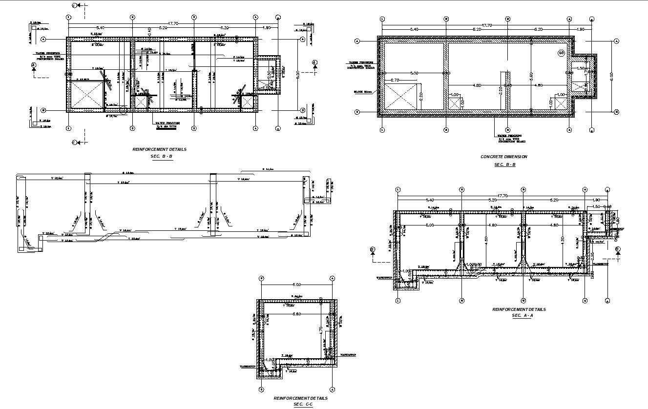
Explore detailed structural designs for fire tanks with this AutoCAD DWG file. Accessible in CAD format, this drawing offers intricate insights into the structural elements of fire tanks. Gain valuable information on construction specifics, including reinforcement details, support systems, and overall layout. Enhance your project planning with this comprehensive CAD drawing, providing essential details for optimal fire tank implementation. Download the DWG file today to streamline your design process and ensure precision in your construction endeavors.
Uploaded by:
K.H.J
Jani

