Comprehensive Schematic Layout Plan for Water Filtration System
Description
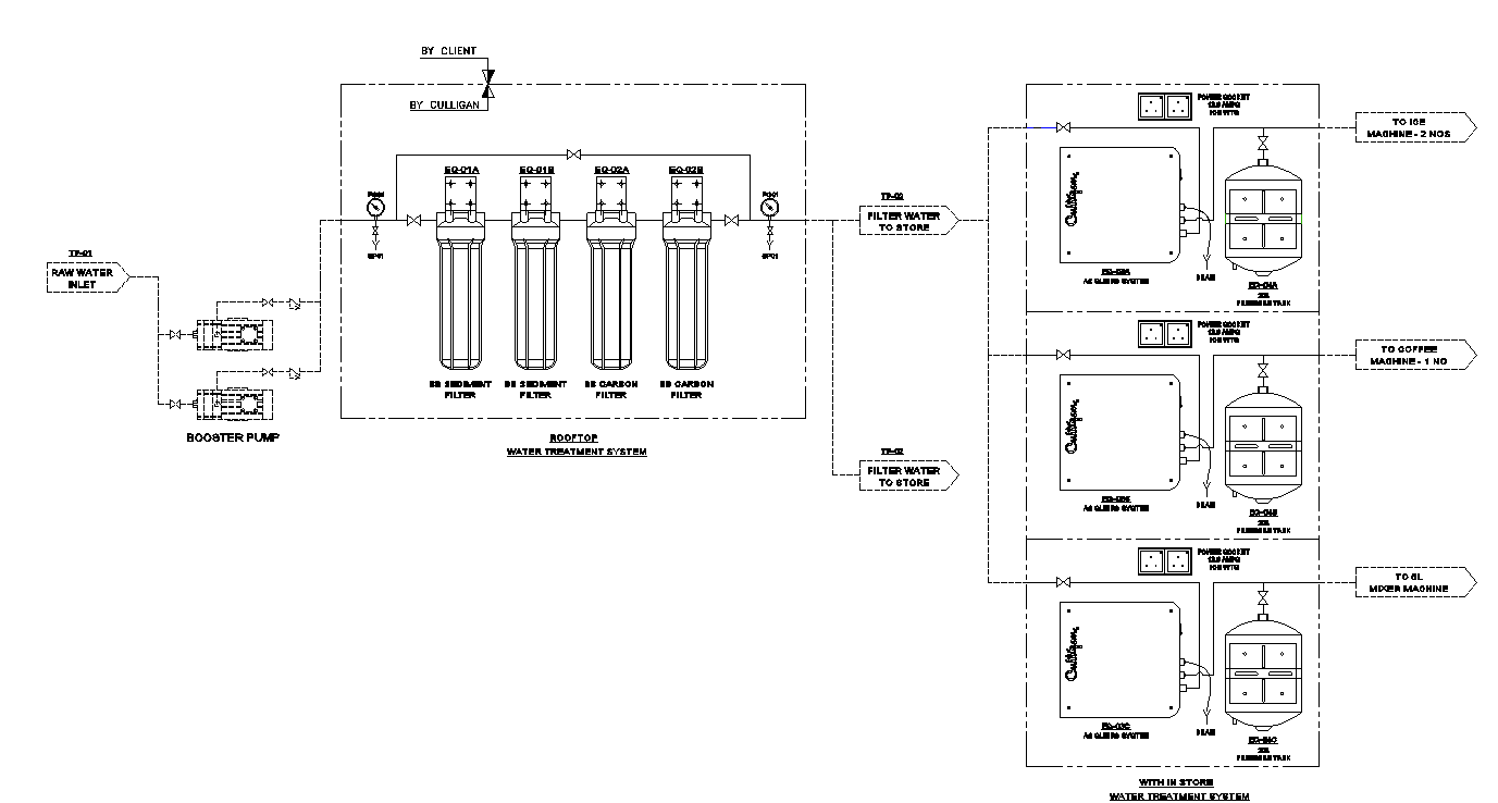
Crafted with precision, our comprehensive schematic layout plan unveils the intricacies of an advanced Water Filtration System Meticulously designed to optimise efficiency and functionality, this human-written blueprint offers a detailed guide to the seamless integration of components. From filtration units to pipeline connections, every aspect is thoughtfully mapped out, ensuring a robust and reliable system for clean and purified water. Dive into a world of clarity with our expertly crafted schematic, setting the standard for water filtration excellence.

Uploaded by:
john
kelly

