2 BHK Apartment Floor Plan and CAD Layout in DWG File
Description
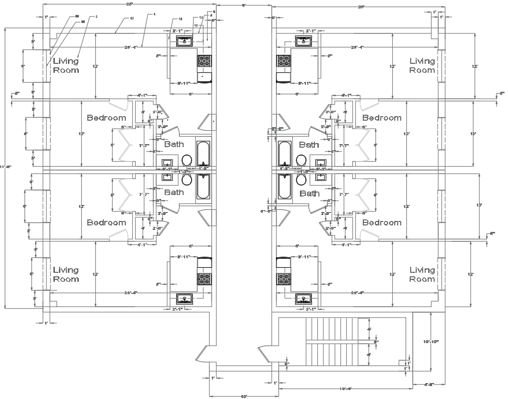
Nestled within the confines of a contemporary design, this 2-bedroom apartment layout, meticulously crafted in AutoCAD, offers a seamless blend of functionality and style. Spanning across a generous area of 51'6"X 25' every corner of this living space has been thoughtfully planned to optimize comfort and convenience. Upon entering, you're greeted by a well-defined living area, perfect for relaxation and entertainment alike. Adjacent to it, a modern kitchen area awaits, designed to inspire culinary creativity with its efficient layout. The two bedrooms, strategically positioned for privacy, provide ample space for rest and rejuvenation. Additionally, this layout features intelligently integrated storage solutions to maximize space utilization. Whether you're a young couple starting a new chapter or a small family seeking a cozy abode, this meticulously detailed AutoCAD plan promises to cater to your lifestyle needs with finesse.

Uploaded by:
john
kelly

