DWG File of 2-Storey House with Garden and Floor Plan

DWG File of 2-Storey House with Garden and Floor Plan
Profile

Uploaded by:

K.H.J

Jani

Description

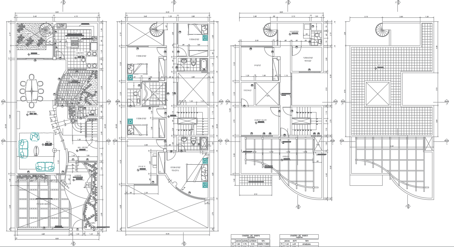
Explore the intricacies of your dream home with the detailed "Layout Plans for First and Second Floor with Garden Details Of 2 Storey House DWG File." This meticulously crafted CAD drawing provides a comprehensive view, featuring precise dimensions, a spacious kitchen area, inviting dining space, and four cosy bedrooms. Dive into the WC details that complement the functionality of each floor. The beauty of this 2-storey house unfolds in the garden details, seamlessly integrated into the design. Accessible through AutoCAD files, this CAD drawing offers a user-friendly experience, making it a valuable addition to your architectural toolbox. Uncover the potential of your space with this thoughtfully designed "Layout Plans for First and Second Floor with Garden Details Of 2 Storey House DWG File," where every detail is brought to life in the digital realm.

 

Profile

Uploaded by:

K.H.J

Jani

find Latest

Related Files

WhatsApp Chat