Standard Structural Details Drawings In AutoCAD DWG File
Description
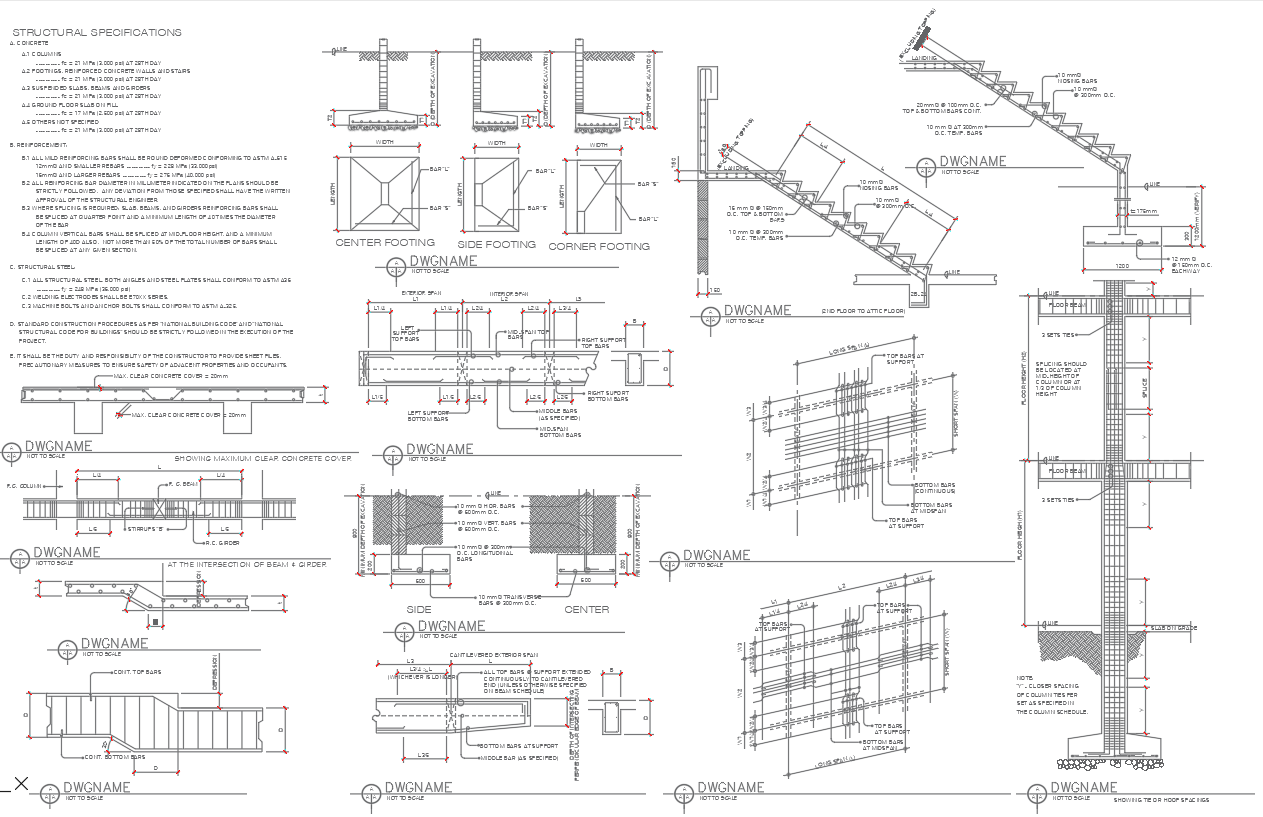
Explore a comprehensive AutoCAD DWG file containing a wealth of standard structural details, perfect for architects and engineers alike. Dive into detailed insights on various elements such as footing specifics, stair intricacies, conventional beam configurations, reinforcement details for slabs (both two-way and one-way), elevation nuances for columns, spiral stair intricacies, and wall footing specifics. This CAD file serves as a valuable resource, providing easy access to essential design elements for your architectural and engineering projects. Download this DWG file to seamlessly integrate these CAD drawings into your plans, saving time and ensuring precision in your structural designs.
Uploaded by:
K.H.J
Jani

