Study Table Design and Wall Interior Detailed Drawing In DWG File
Description
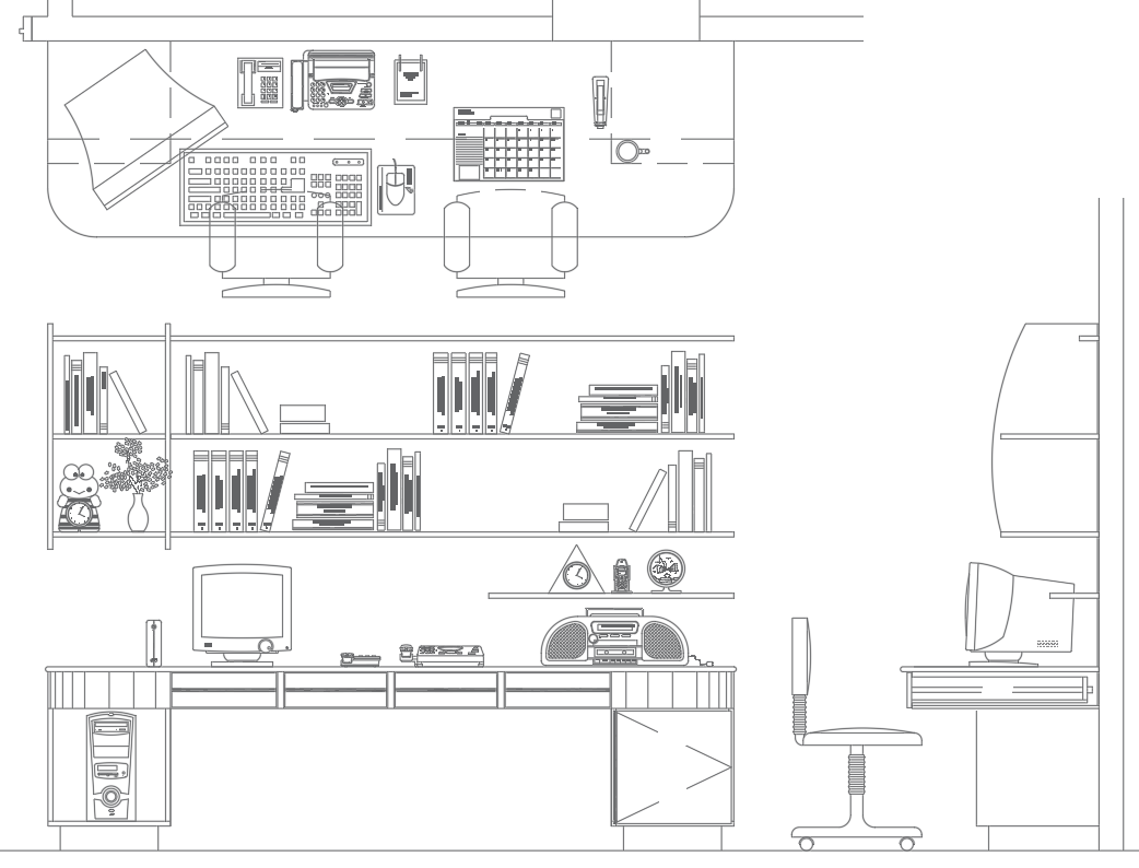
Discover the perfect blend of functionality and aesthetics with our Study Table Design and Wall Interior Detailed Drawing, available in DWG file format. This meticulously crafted CAD drawing provides a top view of a thoughtfully designed study table, ensuring both practicality and style in your study space. The detailed drawing also incorporates wall decor design elements, seamlessly integrating functionality and aesthetics. Elevate your interior design game by utilising this AutoCAD file, offering convenience for architects and designers in their projects. With our CAD files, you gain access to a wealth of design details to enhance your study area effortlessly. Download the DWG file now to bring a touch of sophistication to your study room, combining form and function seamlessly.
Uploaded by:
K.H.J
Jani

