Architectural Plan Details for 11th Floor Office Fit-Out Renovation in DWG File
Description
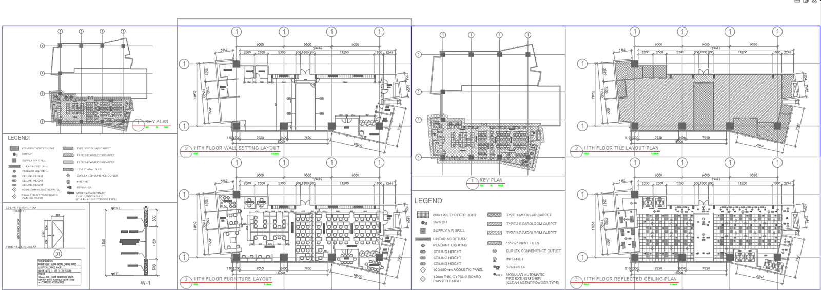
Explore the intricate details of the 11th-floor office fit-out renovation through this user-friendly AutoCAD file. The comprehensive DWG file includes specific insights into the wall settings layout, offering a clear picture of the spatial arrangement. Dive into the functional and aesthetic aspects with the 11th-floor furniture layout, meticulously planned for optimal workflow. The tile layout plan provides a visual guide for flooring, enhancing both design and functionality. Additionally, the reflected ceiling plan on the 11th floor is thoughtfully incorporated, showcasing lighting and architectural elements. Access this CAD drawing to seamlessly navigate through the nuances of the renovation, making it a valuable resource for architects and designers alike.
Uploaded by:
K.H.J
Jani

