Architectural Plan With Section and Elevation Details for a 4-Story Office Building In DWG File
Description
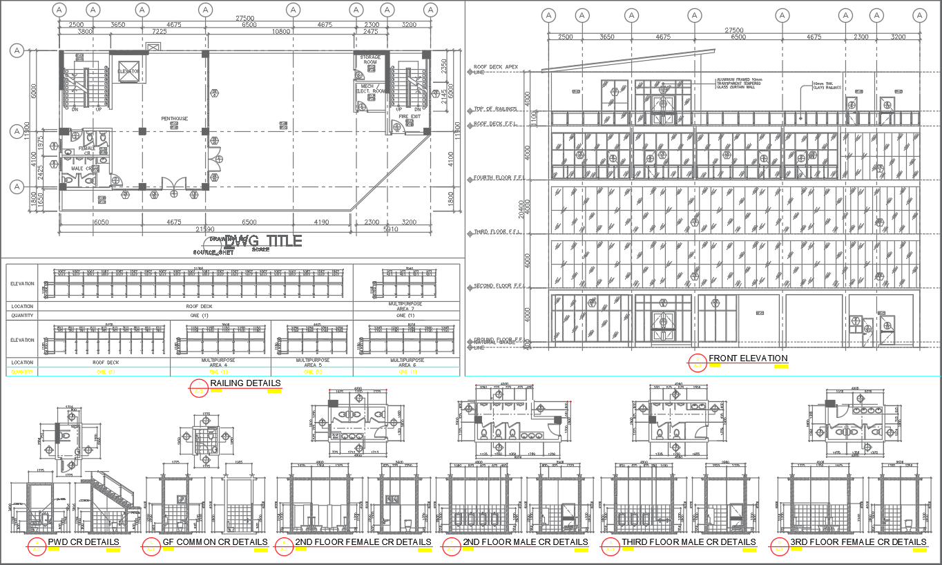
Explore the detailed architectural plan of a 4-story office building in this AutoCAD DWG file, featuring comprehensive section and elevation details. The front elevation showcases the building's exterior design, while the 2nd floor includes female restroom specifics, and the 3rd floor outlines details for the male restroom. Additionally, you'll find railing details that contribute to the overall structure's safety and aesthetics. This CAD drawing provides a comprehensive overview of the building's layout and design elements, making it an invaluable resource for architects and designers. Download this DWG file to access a wealth of information, allowing for a seamless integration of these architectural plans into your own projects.
Uploaded by:
K.H.J
Jani

