Floor Plan with House Architecture in AutoCAD File
Description
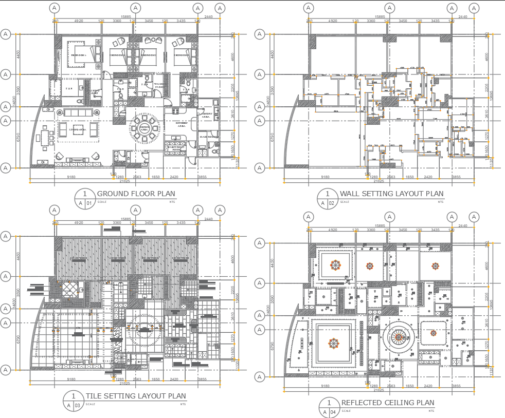
Explore the intricate details of a Residential House Architectural Plan, meticulously crafted in an AutoCAD file. Immerse yourself in the precision of the 1 Ground Floor Plan Detail, offering a comprehensive layout of the living space. Dive into the essence of design with the 1 Wall Setting Layout Plan Detail, providing insights into the structural harmony. Uncover the elegance within the 1 Tile Setting Layout Plan Detail, showcasing a seamless blend of aesthetics and functionality. Elevate your understanding through the Reflected Ceiling Plan Detail, capturing the essence of the spatial dynamics. This collection of CAD files delivers a wealth of information, allowing you to delve into the nuances of architectural planning, making it an invaluable resource for those seeking a holistic perspective on Residential House design.
Uploaded by:
K.H.J
Jani
