Drawing of Foundation Detail with Column and Beam Specifications In DWG File
Description
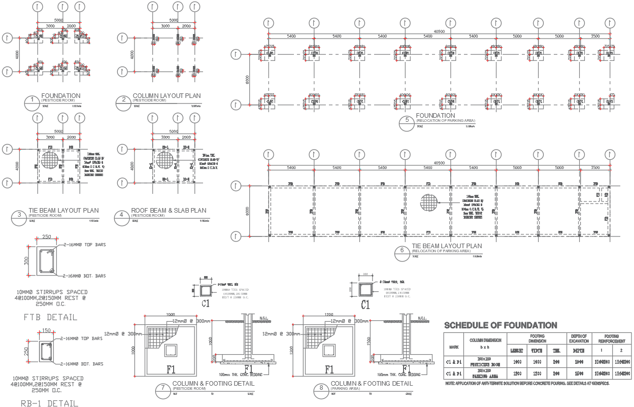
Explore a comprehensive DWG file detailing the foundation intricacies, complete with precise specifications for columns and beams. The drawing encompasses essential elements such as the foundation plan, column layout plan, tie beam layout plan, roof beam, and slab plan, ensuring a holistic view of the structural design. Delve into the intricacies of column and footing details, meticulously outlined for clarity and accuracy. This CAD drawing not only serves as a blueprint for construction but also provides a seamless integration of AutoCAD files, facilitating ease of access and modification. The schedule of foundation further enhances the document's utility, offering a systematic breakdown of key components. Elevate your project with this well-crafted and detailed DWG file that seamlessly combines the artistry of architectural design with the precision of CAD technology.
Uploaded by:
K.H.J
Jani

