Foundation Plan with Floor Framing Plan and Roof Beam Plan for Two-Storey Residential House In DWG File
Description
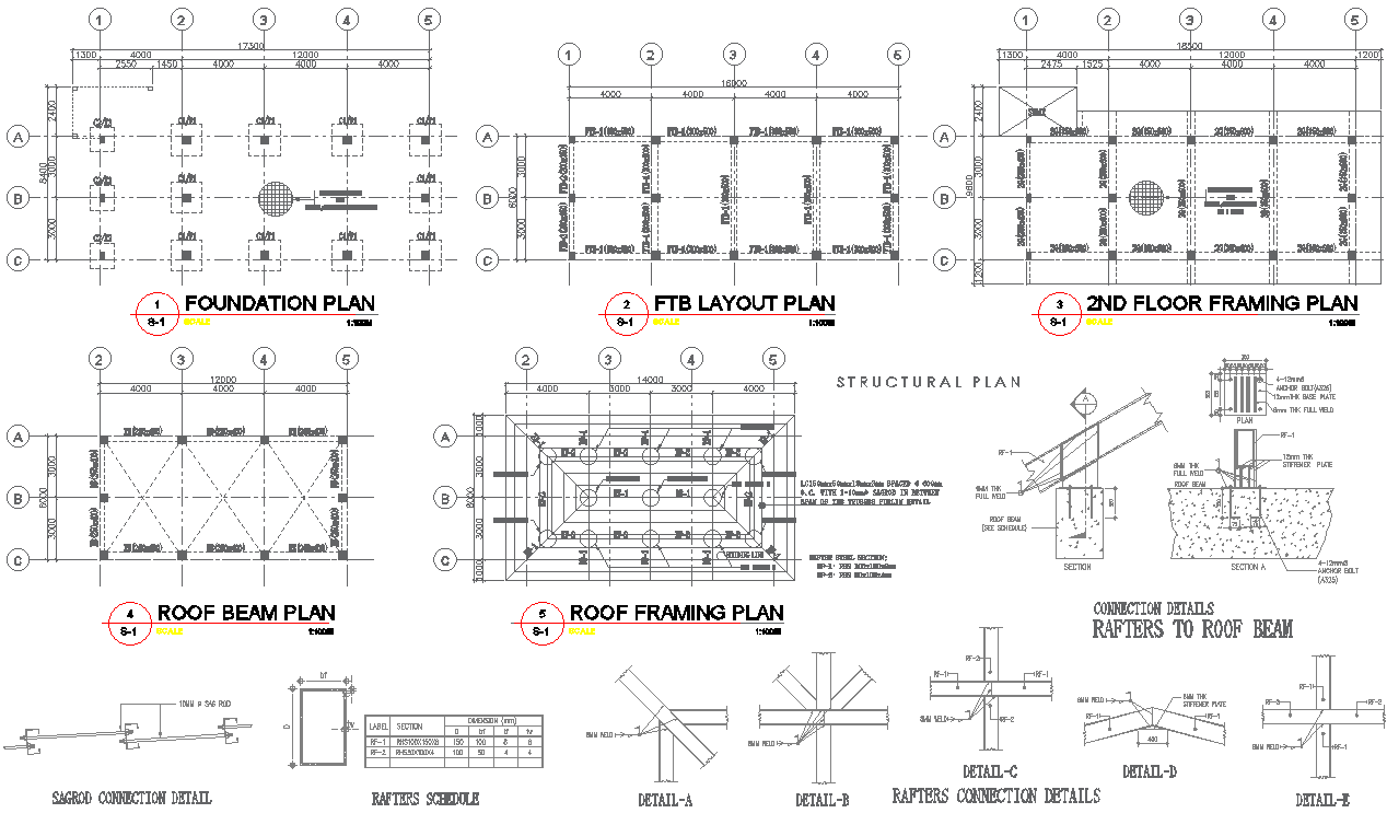
Explore the comprehensive structural detail plans for a Two-Storey Residential House presented in an easily accessible AutoCAD file (DWG file). Delve into the intricacies of the Foundation Plan, shedding light on the solid groundwork supporting the entire structure. Navigate through the FTB Layout Plan, offering a clear visualisation of the foundation-to-beam connection. Ascend to the 2nd Floor Framing Plan, unveiling the framework intricacies of the upper level. Examine the Roof Framing Plan, illustrating the detailed arrangement of rafters and their connection to the Roof Beam. Dive into the Roof Beam Plan, which provides a top-down view of the load-bearing elements. Uncover the specifics of Rafters to Roof Beam connections and gain insight into Sag Rod Connection Details. This CAD drawing encapsulates a wealth of information, allowing for a holistic understanding of the structural nuances within this Two-Storey Residential House. Download the DWG file and access these meticulously crafted plans to facilitate your construction endeavours with precision and clarity.
Uploaded by:
K.H.J
Jani

