Lighting and Power Layout for Two-Story Residential House In AutoCAD File
Description
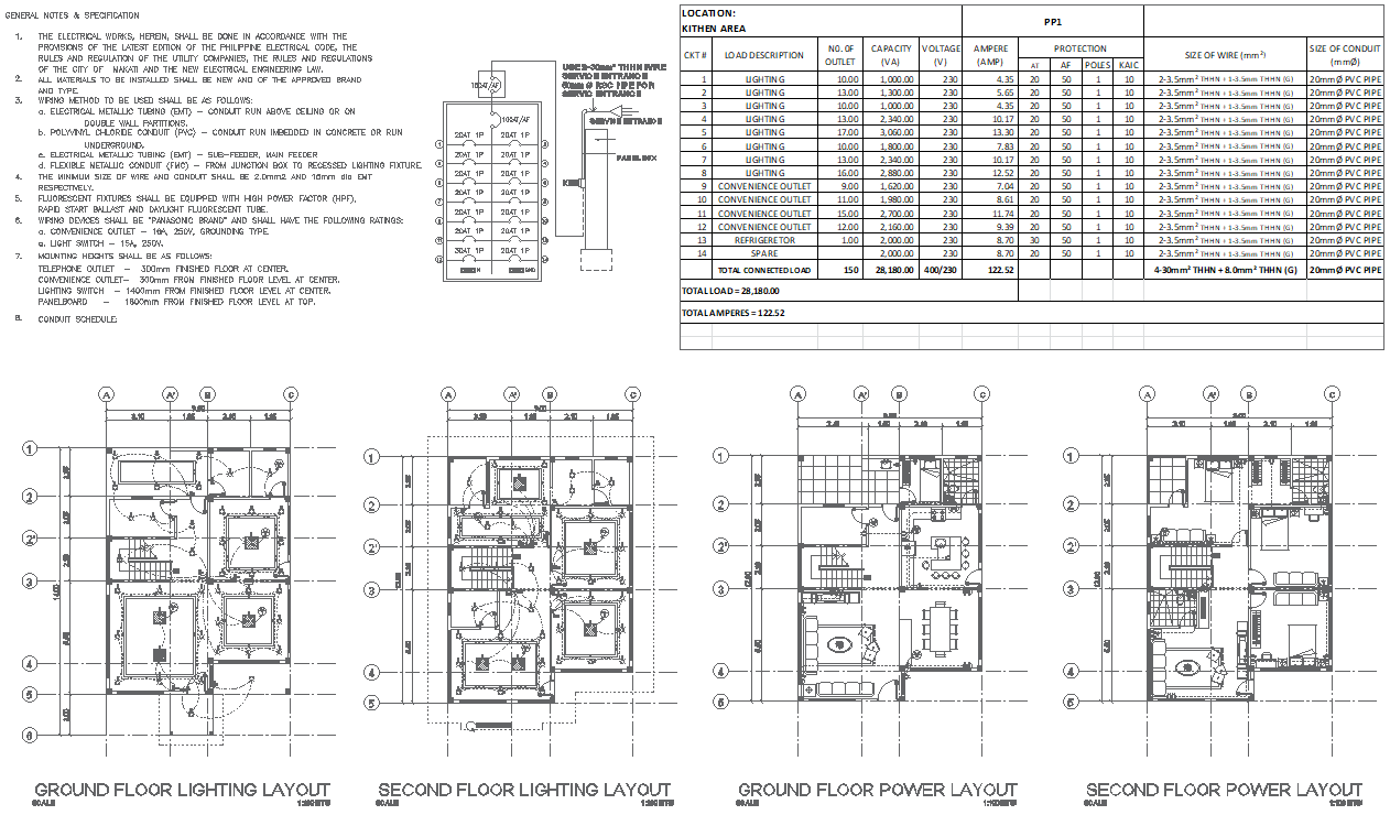
Discover the comprehensive electrical detail plans for a Two-Story Residential House in this AutoCAD file, offering a seamless integration of lighting and power layouts. The Ground Floor Lighting Layout ensures a well-lit and inviting atmosphere, meticulously planned for optimal illumination. Moving to the Second Floor Lighting Layout, the design continues to prioritise functionality and aesthetics, creating a harmonious living space. On the power front, the Ground Floor Power Layout is strategically outlined to cater to various electrical needs, ensuring a reliable supply throughout. Simultaneously, the Second Floor Power Layout maintains the same meticulous approach, providing a seamless power distribution plan. These electrical plans, meticulously crafted in AutoCAD, come in the form of CAD files, making it easy to integrate into your project. The lightning layout and power layout are thoughtfully detailed, reflecting the efficiency and convenience required for a Two-Story Residential House. Accessible in DWG files, these CAD drawings offer a valuable resource for your electrical planning needs.
Uploaded by:
K.H.J
Jani

