Corporate Office Ground Floor Layout Plan Detail In AutoCAD File
Description
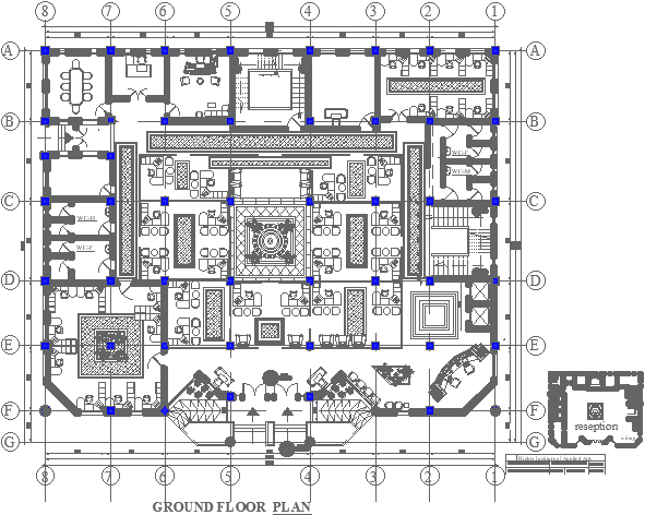
Explore the intricacies of a corporate office ground floor layout plan with our detailed AutoCAD file. This CAD drawing provides a comprehensive depiction of the ground floor layout, offering valuable insights into the spatial arrangement of the corporate office space. Navigate through the AutoCAD file to discover the meticulous detailing of office zones, meeting rooms, and common areas, all meticulously crafted in a user-friendly DWG file. This ground floor plan in AutoCAD captures the essence of efficient space utilisation, enhancing your understanding of the corporate office's functional design. Download this CAD file for a closer look at the nuances of the ground floor layout plan, perfect for architects and designers seeking a valuable resource in their projects.
Uploaded by:
K.H.J
Jani

