First Floor Layout Plan Detail of Corporate Office In AutoCAD File
Description
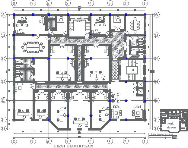
Explore the intricacies of the first floor layout plan in this detailed AutoCAD file showcasing the blueprint of a corporate office. The carefully crafted CAD drawing provides a comprehensive view of the spatial arrangement, allowing you to navigate through the various sections effortlessly. The precision of the AutoCAD file ensures a top-notch representation of the first floor plan, capturing the essence of the corporate office design. This DWG file not only serves as a valuable resource for architects and designers but also facilitates a clear understanding of the architectural layout. Dive into the world of CAD files and discover the meticulous detailing embedded in this first floor layout plan, a key tool for anyone involved in office space planning and design.
Uploaded by:
K.H.J
Jani
