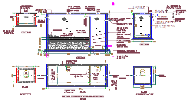
System of rain water collection design drawing

System of rain water collection design drawing
Profile

Uploaded by:

zalak

prajapati

Description
Here the System of rain water collection design drawing with plan design drawing, section design drawing and detail design drawing in this auto cad file.
Profile

Uploaded by:

zalak

prajapati

find Latest

Related Files

WhatsApp Chat