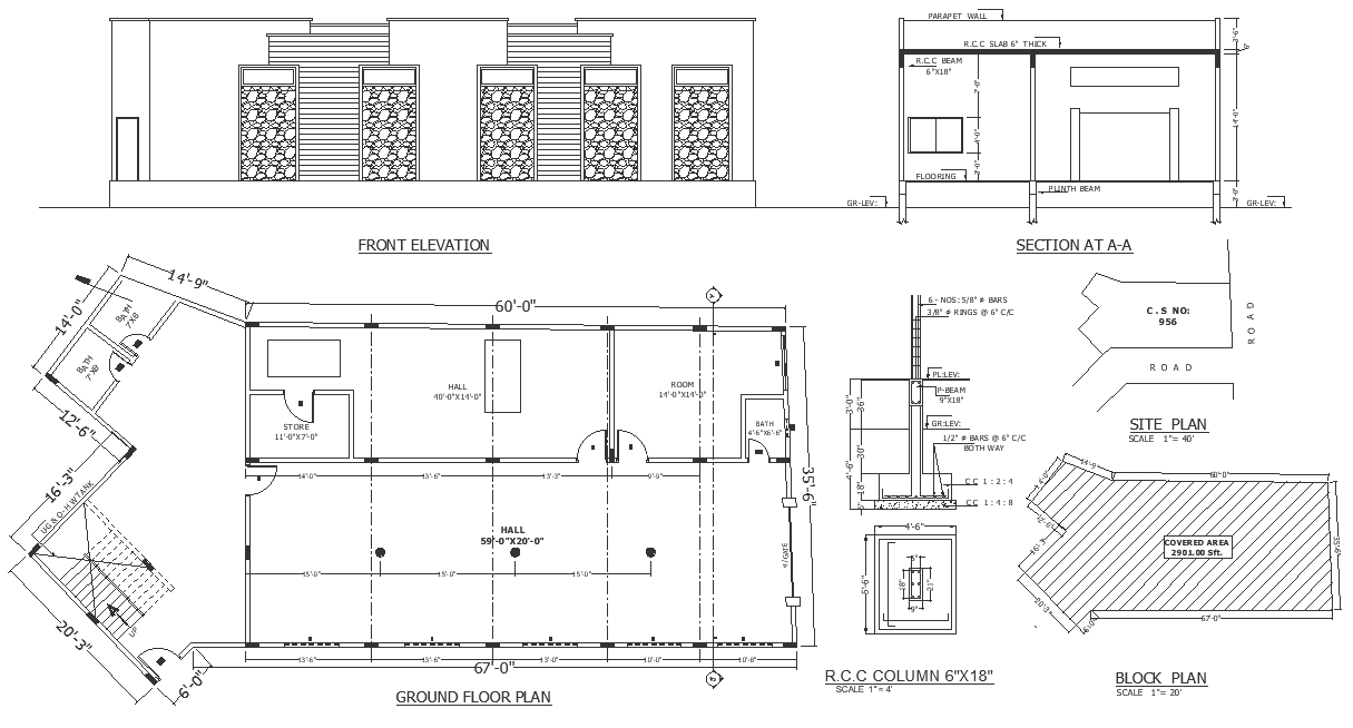
Exhibition hall details with RCC column detail and block plan dwg autocad drawing .
Description
Discover our meticulously crafted Autocad drawing showcasing detailed plans for an exhibition hall, complete with RCC column details and a block plan. This drawing provides comprehensive insights into plot details, enabling thorough site analysis and efficient space planning. With a focus on furniture layout and floor design, it ensures optimal functionality and aesthetic appeal for your exhibition space. The RCC column details offer valuable information for structural integrity, while the block plan provides a clear overview of the layout's organization. Ideal for architects, designers, and developers, this drawing facilitates seamless integration into your project workflow. Available as an Autocad file, it offers flexibility for customization according to your specific requirements. Elevate your exhibition hall design with our SEO-friendly drawing, designed to enhance your creative process and streamline project development.

Uploaded by:
Eiz
Luna

