Covered area block plan and site plan details RCC column detail dwg autocad drawing.
Description
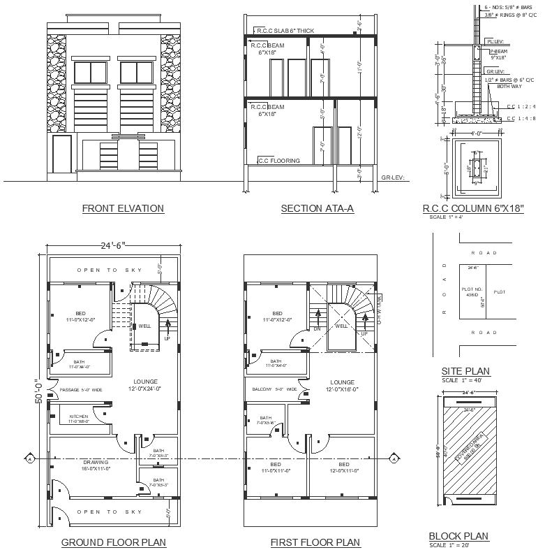
Our Autocad drawing presents a comprehensive depiction of covered area block and site plan details, coupled with RCC column intricacies. Tailored for architects, designers, and developers, this drawing is an invaluable asset for planning residential or commercial spaces. With a meticulous focus on plot details, furniture arrangement, and architectural nuances, it provides a holistic understanding of the proposed structure's layout. The inclusion of RCC column details ensures structural integrity and safety, contributing to seamless construction processes. Ideal for urban design and society development endeavors, this drawing facilitates optimized space utilization and aesthetically pleasing designs. Delivered as an Autocad file, it offers flexibility for customization, enabling architects to tailor designs according to specific project requirements. Elevate your design projects with this SEO-friendly drawing, meticulously crafted to enhance workflow efficiency and project outcomes.

Uploaded by:
Eiz
Luna
