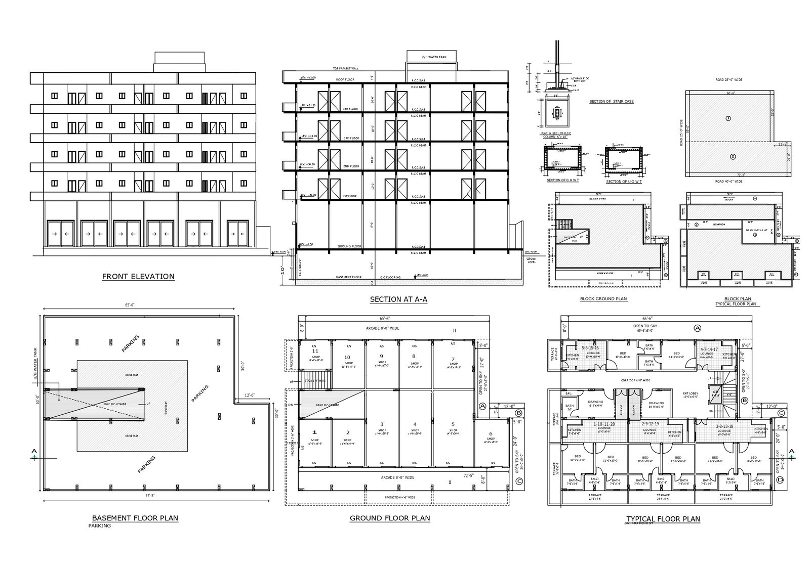
Block ground plan and block plan for typical floor plan with elevation section and other details dwg autocad drawing.
Description
Unlock the blueprint for excellence with our meticulously crafted AutoCAD drawings detailing block ground plans and typical floor plans. Dive into our DWG files to explore plot details and site analysis, ensuring seamless integration with your project's vision. From furniture arrangements to elevation and section details, our designs prioritize comprehensive space planning and floor layout optimization. Delve deeper into our CAD drawings to uncover column intricacies and architectural facets, embodying the essence of urban design principles. Whether you're envisioning residential homes, bungalows, or villas, our block plans cater to every aspect of society's development. Trust our expertise to deliver sophisticated designs that transcend expectations, fostering sustainable and vibrant communities. Unleash the potential of your project with our detailed and meticulously curated block plans, shaping the future of architectural excellence.

Uploaded by:
Eiz
Luna

