3 feet high parapet wall design ith elevation section and other detail autocad dwg drawing .
Description
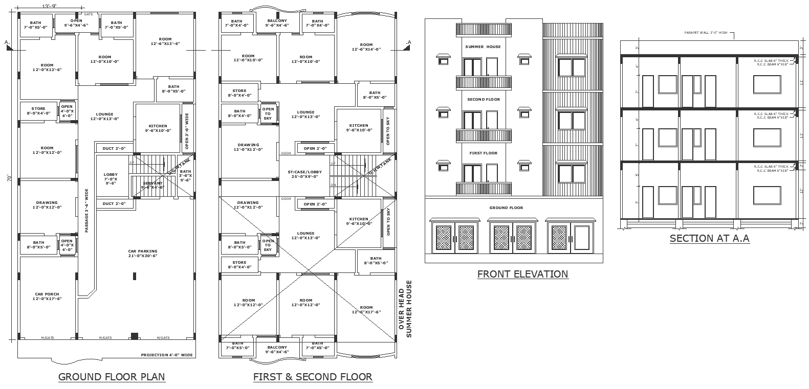
Explore the meticulous design of a 3 feet high parapet wall depicted in our AutoCAD DWG drawing, complete with elevation section and other intricate details. Delve into our DWG files to uncover plot details and site analysis, ensuring seamless integration with your project's vision. From furniture arrangements to elevation and section details, our designs prioritize comprehensive space planning and floor layout optimization, ensuring functionality and aesthetic appeal. Dive deeper into our CAD drawings to unveil column intricacies and architectural facets, epitomizing urban design principles. Whether you're envisioning a residential home, bungalow, or villa, our parapet wall design adds a touch of sophistication while serving practical purposes. Trust our expertise to deliver sophisticated designs that exceed expectations, contributing to the development of vibrant societies. Unleash the potential of your project with our meticulously curated drawings, shaping the future of architectural excellence.

Uploaded by:
Liam
White

