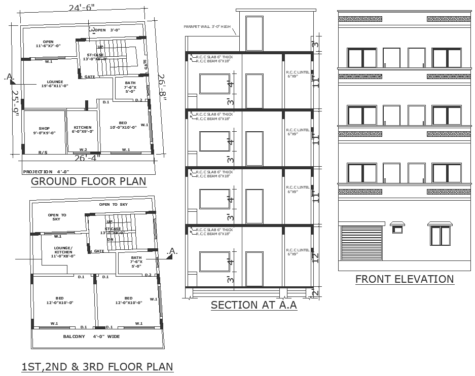
First second and third floor plan with elevation section and other details dwg autocad drawing .
Description
Explore the comprehensive architectural vision of your multi-level structure with our meticulously crafted DWG AutoCAD drawing, featuring detailed floor plans for the first, second, and third levels. Delve into the intricacies of plot detail and site analysis, ensuring optimal spatial utilization and alignment with your architectural vision. Our drawing encompasses furniture detailing, column specifications, and floor layout, providing a holistic view of your project's design. Elevations and sections are thoughtfully captured, offering insights into the exterior and interior aesthetics. Whether you're planning a modern urban development or a traditional villa layout, our drawing caters to diverse architectural styles. Download our AutoCAD file today to kickstart your project and witness the seamless integration of design, functionality, and society development into your architectural masterpiece.

Uploaded by:
Liam
White

