60ft X 60ft plot size, four floor hotel detailed plan, elevation and sections with attached balcony detail DWG AutoCAD drawing.
Description
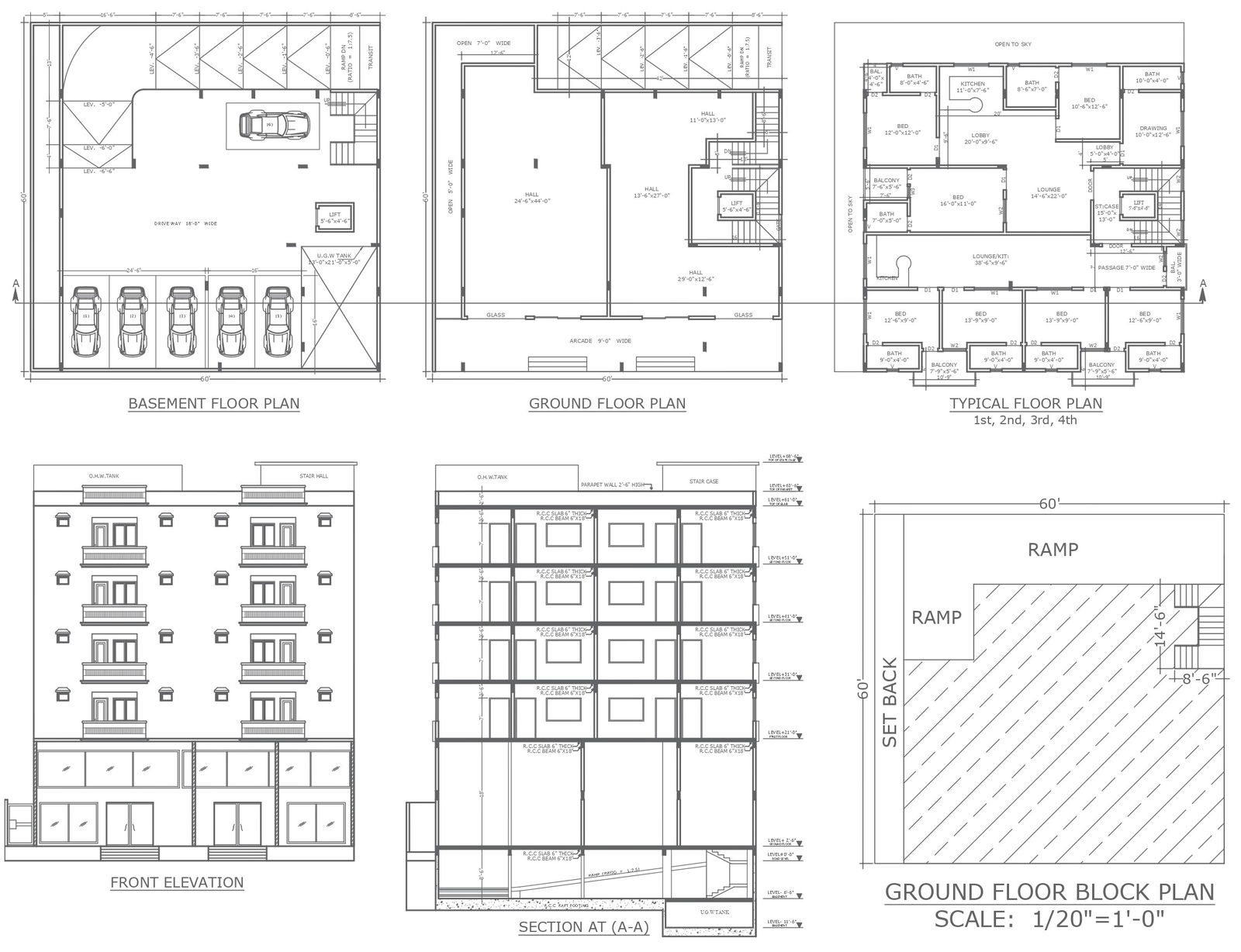
Discover the intricacies of a luxurious four-floor hotel design on a 60’ x 60’ plot, meticulously detailed in our AutoCAD drawing (DWG file). This comprehensive plan incorporates plot details, furniture arrangements, and space planning considerations, ensuring optimal functionality and aesthetic appeal. Elevations and sections provide architectural insights, while attached balcony details add a touch of elegance to each floor. Whether envisioning a hotel plan or restaurant design, our drawing offers invaluable insights into floor layouts and architectural intricacies. Enhance your project with our CAD drawings, unlocking endless design possibilities and meticulous attention to detail. From the refined interiors to the grand façade, experience the epitome of architectural sophistication and hospitality across multiple floors. Immerse yourself in the allure of this contemporary hotel design, where every element reflects excellence in design and execution.
Uploaded by:

