60ft x 45ft plot 5 BHK bungalow layout detailed ground and first floor plans, with elevations and sections DWG AutoCAD drawing.
Description
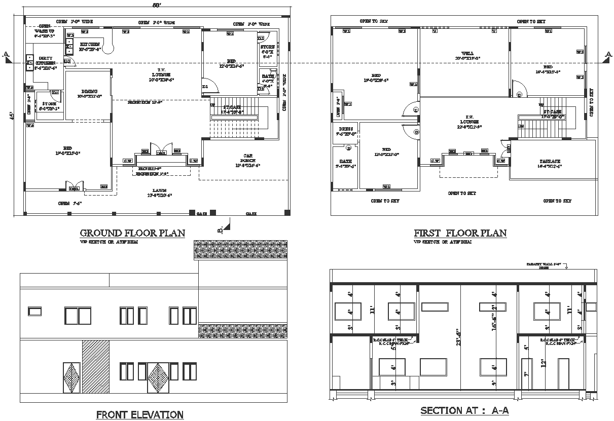
Explore the meticulous design of a 5 BHK bungalow on a 60’ x 45’ plot, detailed in our AutoCAD drawing (DWG file). This comprehensive layout includes ground and first floor plans, elevations, and sections, showcasing optimal space planning and aesthetic appeal. From plot details to furniture arrangements, every aspect is carefully considered to create a harmonious living space. Elevations and sections offer architectural insights, while precise column details ensure structural integrity. Whether envisioning a house plan or villa design, our drawing provides invaluable insights into floor layouts and architectural intricacies. Enhance your project with our CAD drawings, unlocking endless design possibilities and meticulous attention to detail. From the ground floor to the first, experience the charm and functionality of this 5 BHK bungalow design. Immerse yourself in the allure of this contemporary architectural marvel, where every detail reflects excellence in design and execution.
Uploaded by:

