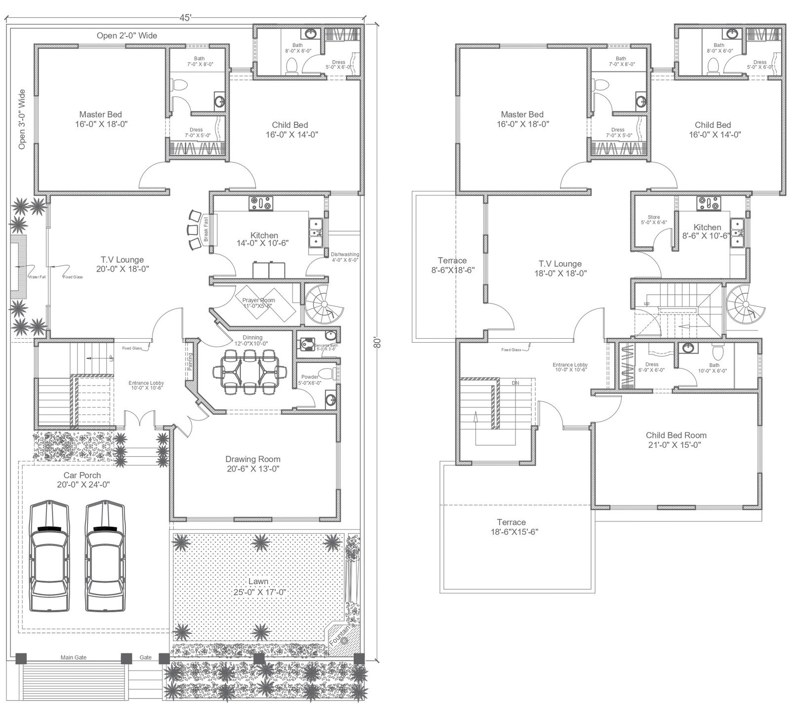
45ft X 80ft plot two storey house with two car parking capacity detailed plan DWG AutoCAD drawing.
Description
Explore the meticulously detailed plan of a two-story house on a 45’ x 80’ plot, complete with a two-car parking capacity, in our AutoCAD drawing (DWG file). This comprehensive layout caters to optimal space planning and functionality, offering ample room for furniture arrangements and convenient living. Elevations and sections provide architectural insights, while precise column details ensure structural integrity. Whether envisioning a house plan or villa design, our drawing offers invaluable insights into floor layouts and architectural intricacies. Enhance your project with our CAD drawings, unlocking endless design possibilities and meticulous attention to detail. From the ground floor to the second, experience the convenience and charm of this two-storey house design. Immerse yourself in the allure of this contemporary architectural marvel, where every detail reflects excellence in design and execution.
Uploaded by:

