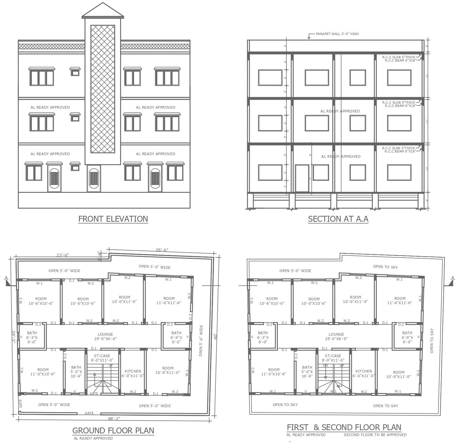
48ft X 40ft plot three story house detailed plan, sections and elevations DWG AutoCAD drawing.
Description
Explore the intricacies of a three-storey house on a 48’ x 40’ plot, meticulously detailed in our AutoCAD drawing (DWG file). This comprehensive plan includes detailed floor plans, sections, and elevations, offering insights into optimal space planning and architectural design. From plot details to furniture arrangements, every aspect is carefully considered to create a functional and aesthetically pleasing living space. Elevations and sections provide architectural insights, while precise column details ensure structural integrity. Whether envisioning a house plan or villa design, our drawing offers invaluable insights into floor layouts and architectural intricacies. Enhance your project with our CAD drawings, unlocking endless design possibilities and meticulous attention to detail. From the ground floor to the third, experience the charm and convenience of this three-storey house design. Immerse yourself in the allure of this contemporary architectural marvel, where every detail reflects excellence in design and execution.
Uploaded by:

