Two storey 7 BHK house plan with U shaped staircase detailed layout DWG AutoCAD drawing
Description
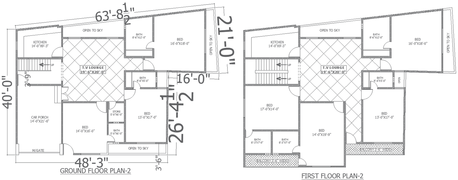
Discover the elegant design of a two-storey 7 BHK house plan featuring a U-shaped staircase, meticulously detailed in our AutoCAD drawing (DWG file). This comprehensive layout incorporates plot details, furniture arrangements, and space planning considerations, ensuring both functionality and aesthetic appeal. Elevations and sections provide architectural insights into the design, while precise column details ensure structural integrity. Whether envisioning a house plan or villa design, our drawing offers invaluable insights into floor layouts and architectural intricacies. Enhance your project with our CAD drawings, unlocking endless design possibilities and meticulous attention to detail. From the ground floor to the second, experience the charm and convenience of this spacious house plan with a stunning U-shaped staircase. Immerse yourself in the allure of this contemporary architectural marvel, where every detail reflects excellence in design and execution
Uploaded by:

