38.5ft X 70 ft plot size 5 storey 2 bhk apartment floor plan section and front elevation detail DWG AutoCAD drawing
Description
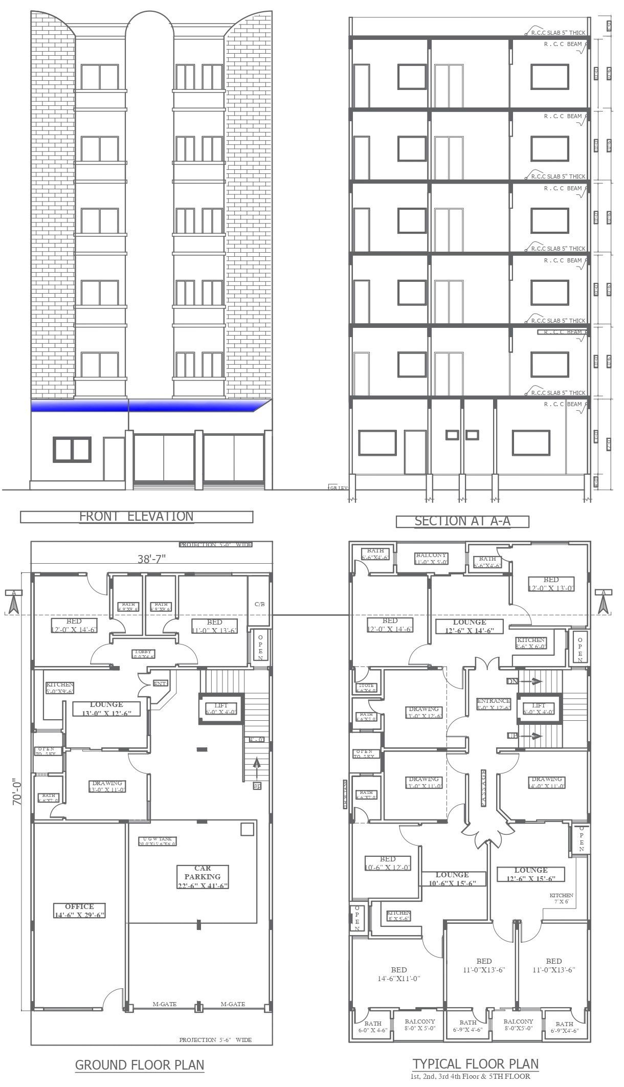
Explore the meticulously crafted floor plan, section, and front elevation details of a 5-storey 2 BHK apartment on a 38.5ft x 70 ft plot, meticulously detailed in our AutoCAD drawing (DWG file). This comprehensive layout integrates plot details, furniture arrangements, and space planning considerations, ensuring optimal functionality and aesthetic appeal for each apartment unit. Elevations and sections offer architectural insights into the design, while precise column details ensure structural integrity. Whether envisioning a housing scheme or apartment design, our drawing provides invaluable insights into floor layouts and architectural intricacies tailored to modern living. Enhance your project with our CAD drawings, unlocking endless design possibilities and meticulous attention to detail. From the layout of individual units to the overall façade design, experience the convenience and efficiency of this meticulously planned apartment complex. Immerse yourself in the creative process, where every detail reflects excellence in design and execution.
Uploaded by:

