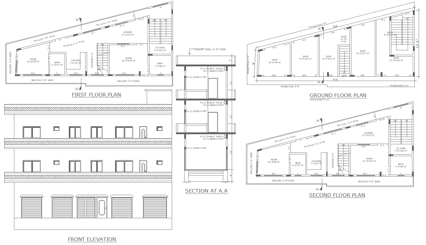
Two storey house plan with attached balcony all 3 side triangular plan section and elevation detail DWG AutoCAD drawing
Description
Explore our meticulously crafted AutoCAD drawing (DWG file) showcasing a comprehensive two-storey house plan with attached balconies on all three sides, designed in a unique triangular layout. This drawing includes detailed sections and elevations, providing valuable insights into the spatial arrangement and architectural elements of the house. With a focus on plot detail and site analysis, our drawing seamlessly integrates into any housing scheme or urban design project. The thoughtful space planning ensures optimal utilization of space, while the facade design and architectural details add character and charm to the structure. Whether you're an architect, designer, or homeowner, our DWG drawing serves as a valuable resource for visualizing and planning your dream home. Download our DWG file today to bring your architectural visions to life with precision and efficiency.
Uploaded by:

