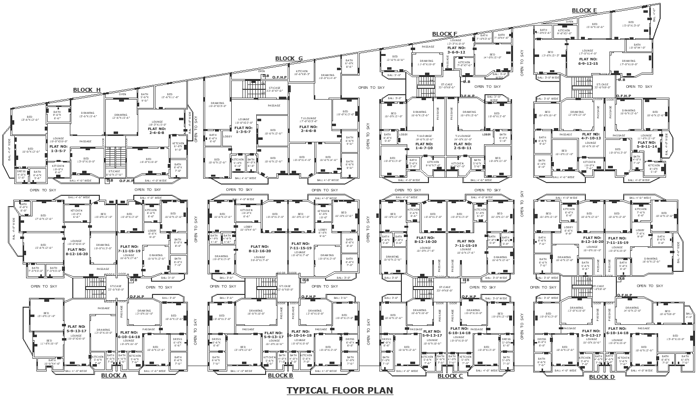
Housing society detail planning of two bhk apartment with 8 wings layout DWG AutoCAD drawing
Description
Explore our meticulously designed AutoCAD drawing (DWG file) showcasing the detailed planning of a housing society with two-bedroom apartment layouts across 8 wings. This comprehensive drawing includes essential elements such as plot details, site analysis, and furniture layout to ensure a holistic understanding of the project. With a focus on space planning and housing scheme integration, each apartment layout is optimized for functionality and comfort. The floor layout, column details, and section details are meticulously depicted to provide architects, designers, and developers with valuable insights into the project's design and construction. Additionally, the facade design and architectural details are thoughtfully incorporated to enhance the overall aesthetic appeal of the housing society. Whether you're planning a new development or renovating an existing one, our DWG file serves as a valuable resource for bringing your vision to life with precision and efficiency.
Uploaded by:

