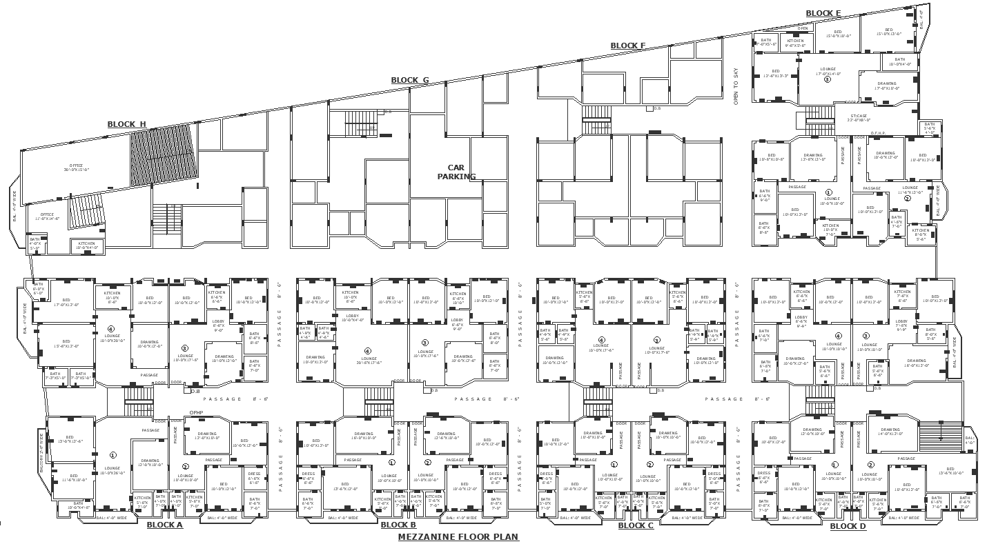
Mezzanine floor plan of 2bhk apartment of 8 wings with all small detail layout DWG AutoCAD drawing
Description
Discover the intricately designed AutoCAD drawing (DWG file) showcasing the mezzanine floor plan of 2BHK apartments across 8 wings. This comprehensive layout includes meticulous details such as plot analysis, furniture arrangement, and space planning, ensuring optimal utilization of available space. With a focus on housing scheme integration and urban design principles, each apartment layout is thoughtfully crafted to maximize functionality and comfort for residents. The floor layout, along with column and section details, provides architects and developers with valuable insights into the project's design and construction. Additionally, the facade design and architectural details enhance the overall aesthetic appeal of the apartments. Whether you're embarking on a new development or renovating existing structures, our DWG file serves as a valuable resource for bringing your vision to fruition with precision and efficiency.
Uploaded by:
