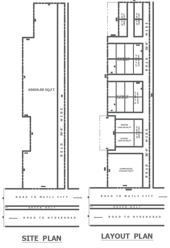
60650sft plot planning with layout plan of school musjid and commercial building detail DWG AutoCAD drawing
Description
Explore our meticulously crafted AutoCAD drawing (DWG file) showcasing a comprehensive layout plan for a 60650 square feet plot. This detailed plan encompasses the development of a school, mosque, and commercial building, offering a holistic blueprint for urban development. With a focus on plot detail and site analysis, our drawing ensures optimal land utilization and efficient space planning. Each element, from furniture detail to elevation and section drawings, is meticulously designed to meet the highest standards of functionality and aesthetics. Whether you're envisioning a vibrant educational institution, a serene place of worship, or a bustling commercial complex, our layout plan provides the necessary framework for success. Elevate your urban design projects with our comprehensive AutoCAD drawing, tailored to meet your specific requirements and bring your vision to life.
Uploaded by:
