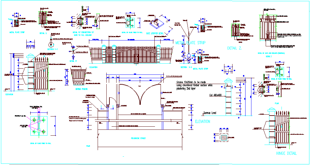
Metal gate design view with concrete column and detail view dwg file
Description
Metal gate design view with concrete column and detail view dwg file with view of
door with dimension and hinge, handle,door frame,concrete column,timber panel
and pin joint detail view in metal gate design.
Uploaded by:

